房天下>潍坊二手房>高新二手房>市府东南区域二手房>枫丹壹号院二手房

南北通透枫丹壹号院4室2厅

分享

微信扫一扫分享好友
更多分享>

收藏

下载房天下APP
楼盘动态及时知

基本信息
建筑年代2019年
有无电梯
产权性质 商品房
挂牌时间 2025-07-17
梯户比例 暂无数据
供暖方式 暂无数据
房屋结构 平层
抵押信息 暂无数据
楼层高度 暂无数据
上次交易 暂无数据
房源动态
  • -
    房源浏览(人)
  • -
    房源带看(次)
  • -
    关注房源(人)
  • 当前房源报价为:160.00万
    2026-02-02

微信扫码查看更多

房源描述
  • 核心卖点
    相信为您推荐的这套房子您一定会满意,赶快行动吧,先到先得!
    房屋年代∶2019,面积∶159.0平方米,朝向∶南北
    1. 小区配备高端物业管理,让你享受宾至如归的服务;
    2. 小区人文素质高,是您的居家的绝佳选择;
    3. 小区居住安静舒适,让您拥有高品质的生活环境;
    4. 小区绿化率高,绿树成荫鸟语花香让您随时呼吸到新鲜空气。
房源图片
室内图
室内图
室内图
室内图
室内图
室内图
室内图
室内图
室内图
室内图
室内图
室内图
室内图
室内图
室内图
室内图
室内图
室内图
室内图
室内图
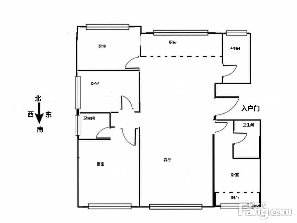
户型图
户型图
160
满二满二
4室2厅2卫
户型
159平米
建筑面积
10063元/平米
单价
南北
朝向
低层
楼层(共17层)
毛坯
装修
小      区
枫丹壹号院小区信息
参考均价11685元/平米
同比去年↓0.63%
环比上月↓1.32%
收藏
物业类型 住宅
建筑年代2019年
绿 化 率30%
容 积 率1.88
人车分流
周边配套
免责声明:房源信息由网站用户提供,其真实性、合法性由信息提供者负责,最终以政府部门登记备案为准。本网站不声明或保证内容之正确性和可靠性,购买该房屋时,请谨慎核查。入学情况仅凭历史经验总结,在此不承诺升学事宜。请您在签订合同之前,切勿支付任何形式的费用,以免上当受骗。